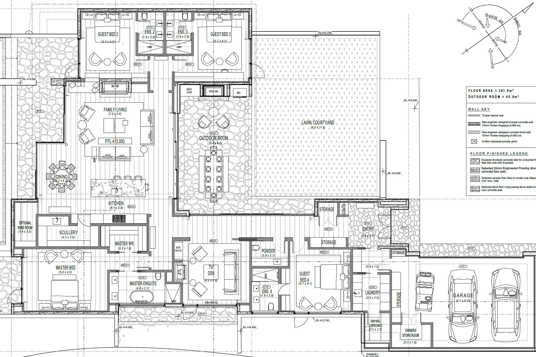
Designed by Sumich Chaplin, the A3 Villas are standalone luxury residences that are thoughtfully designed to complement the rolling fairways and alpine landscape. Each villa features three generous guest suites, offering privacy and comfort for residents and visitors alike. The interiors are organised around dual living room spaces that flow seamlessly into a covered outdoor living area and private landscaped courtyard, creating generous spaces for relaxation, entertaining, and capturing dramatic sun and mountain views. Oversized 2.5-car garages provide generous storage and convenience, all while maintaining the refined aesthetic of each residence.
Architecturally, the villas are defined by a strong yet simple gable form, serving as elegant markers within the golf landscape and paying homage to the Central Otago rural vernacular. These gables are balanced with cantilevered flat roof elements that reconnect the buildings to the contoured topography, creating a dynamic interplay between form and land. Thoughtfully placed skylights bring abundant natural light deep into the heart of each villa, enhancing the sense of space and connection to the sky above.
- Floor area: 381.9 m²
- Outdoor space: 45.9 m²
- Designed by: Sumich Chaplin










